AVALON VISTA (new ship)
The Avalon Vista’s two full decks of suites feature two full decks of Panorama Suites with wall-to-wall, floor-to-ceiling panoramic windows that transform the living space into river cruising’s only Open-Air Balcony. Enjoy seamless views from your Comfort Collection bed that faces the window. With 200 square feet, Panorama Suites are more than 30% larger than the industry standard, affording you the space to entertain in your private sitting area or just relax and enjoy the passing vistas. Onboard amenities include a Fitness Center, complimentary computer use in public areas and complimentary Starlink Wi-Fi access, and a spacious Sky Deck with premium lounge chairs, shade system, whirlpool, and the delightful Sky Bistro. Sweeping views are yours to enjoy on the Avalon Vista!
-
- Complimentary Starlink Wi-Fi (Standard Wi-Fi where available in Asia)
- Panoramic windows throughout the ship
- Elegant, contemporary design & decor
- Friendly, English-speaking crew & Cruise Director
- Sky Deck with whirlpool, shade awnings, game area and premium lounges
- Covered Observation Lounge
- Club Lounge with 24-hour self-serve beverage station with complimentary cappuccinos, lattes, tea, hot chocolate & premium coffees, as well as treats throughout the day
- Elevator
- Non-smoking interior and staterooms
-
2012 BUILT
-
16 STATEROOMS
-
67 SUITES
- 443ft LENGTH
- 47 CREW
Suites & Staterooms
(All Balcony Suites)
-
- Open–Air Balconies® and Wall-to-Wall Panoramic Windows in all Panorama SuitesSM
- Comfort Collection BedsSM with choice of mattress firmness
- Egyptian super-combed cotton linens
- Bathrobes & slippers
- Premium L’Occitane® bath products & hairdryer
- Large bathroom featuring shower with glass door
- Wide selection of free movie channels and English-speaking TV
- Individual climate control and in-room safe
- Full-size closet and mirror
- Additional under-bed storage
- Well-stocked mini-bar
AVALON DELUXE
Indigo Deck (Category D, E) Explore More Details, Room Layout & Features
172 sq. ft.
- Comfort Collection Beds
- Luxurious mattress toppers
- Egyptian super-combed cotton linens
- European-style duvets
- Soft & firm pillows
- Extra blankets
- Choice of bed configuration
- Nightly turn-down service
- Bedside tables with reading lamps
- Premium Hairdryer
- L'Occitane bath products
- Spacious 3-door closets with shelves for ample storage
- Easy under-bed luggage storage
- Flatscreen satellite TV with English-speaking channels & over 50 free movie options
- Alarm clock
- Direct-dial telephone
- Bathrobes & slippers
- Well-stocked minibar
- Complimentary filtered water
- In-room safe
- Individual climate control
- Elegant, contemporary design
- Large mirror in bathroom
- Two windows
- Full shower with glass door
- Writing desk and chair
- Lighted makeup mirror
- Complimentary Wi-Fi
- One Queen-Sized Bed or Two Twins
- USB Ports
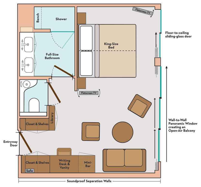
PANORAMA SUITE
Sapphire, Royal Deck (Category A, B, P) Explore More Details, Room Layout & Features
200 sq. ft.
ROYAL SUITE
Royal Deck (Category S) Explore More Details, Room Layout & Features
300 sq. ft.
- Comfort Collection Beds
- Luxurious mattress toppers
- Egyptian super-combed cotton linens
- European-style duvets
- Soft & firm pillows
- Extra blankets
- Choice of bed configuration
- Nightly turn-down service
- Bedside tables with reading lamps
- Premium Hairdryer
- L'Occitane bath products
- Spacious 3-door closets with shelves for ample storage
- Easy under-bed luggage storage
- Flatscreen satellite TV with English-speaking channels & over 50 free movie options
- Alarm clock
- Make-up mirror
- Direct-dial telephone
- Bathrobes & slippers
- Well-stocked minibar
- Complimentary filtered water
- In-room safe
- Individual climate control
- Elegant, contemporary design
- Large mirror in bathroom
- Marble countertops in bathroom
- Wall-to-Wall Panoramic Window with Open-Air Balcony
- 6-person sitting area
- Full shower with glass door
- Writing desk and chair
- Lighted makeup mirror
- Sofa
- Coffee table
- Double sinks
- Complimentary Wi-Fi
- USB Ports
- One King-Sized Bed or Two Twins
Public Spaces
-
- Active shore excursions, both included and optional
- Fitness Center
- Avalon Adventure Center
Your place for active gear* and activities through your Avalon Adventure HostSM, including:- Bikes
- Maps for hiking, biking and jogging routes
- Canoe and kayak excursions
- Fitbits®
- Walking Sticks
- Binoculars
- Daypacks
- Yoga Mats
- Fitness bands
*Personal-use bikes and watercraft not available on Avalon AlegriaSM








